Większość deweloperów sprzedaje lokale w tzw. stanie deweloperskim, do samodzielnego wykończenia, dopuszczając przy tym możliwość wprowadzenia korekt przez kupującego jeszcze przed zakończeniem budowy (o ile nie są to istotne odstępstwa od projektu budowlanego, na który wydano pozwolenie na budowę). Najczęściej nabywcy korzystają z tej możliwości, rzadko kiedy bowiem pierwotny projekt lokalu w pełni odpowiada ich oczekiwaniom i potrzebom. Architekt projektuje mieszkania dla anonimowego użytkownika. Nie wie, kto w nim zamieszka, jakie będzie miał oczekiwania, preferencje. Nigdy nie wie, jak naprawdę będzie użytkowany projektowany lokal. Czyni się pewne założenia i projektuje wg standardu, w zgodzie z obowiązującymi normami i przepisami dla uzyskania pozwolenia na budowę i umożliwienia powstania budynku. Praktyka biur projektowych jest najczęściej taka, że myśli się głównie o bryle obiektu, jego konstrukcji, elewacjach, natomiast funkcjonalność wrysowywanych mieszkań bywa sprawą drugorzędną. Projektanci mają bowiem świadomość, że nie są w stanie przewidzieć wszystkich potrzeb końcowego użytkownika, który i tak w końcowej fazie realizacji będzie usiłował wprowadzić zmiany do projektu. Do tego mieszkania te są zwykle projektowane w sposób bezpieczny, uniwersalny i sprawdzony, z założenia więc nie stosuje się w nich oryginalnych i nowatorskich rozwiązań. Warto zatem wykorzystać wszelkie możliwości poprawy układu oferowane przez dewelopera.
Rozmyślania o mieszkaniu najlepiej zacząć odpowiednio wcześnie, ale i tak kiedyś nadejdzie tzw. deadline, kiedy nie można będzie już dłużej przeciągać podjęcia decyzji. Musimy wówczas zdecydować się na jakieś rozwiązania i, co więcej, rozwiązania te muszą być przekazane wykonawcy w jednoznacznej, zrozumiałej dla niego i nie budzącej wątpliwości formie rysunkowej. Nawet jeśli mamy ogólne wyobrażenie jak chcielibyśmy mieszkać, najczęściej zaczynają się wówczas problemy ze skonkretyzowaniem naszej wizji i przelaniem jej na papier (zakładając, że jesteśmy amatorami, a architektura i budownictwo nie są naszym rzemiosłem).
Możemy zwrócić się wówczas o pomoc do architekta. Możemy zamówić pełny projekt wnętrz, może to być też projekt uproszczony, zawierający tylko elementy niezbędne dla wykonania prac w zakresie objętym umową z deweloperem, każde takie opracowanie ma jednak pewne cechy wspólne, fazy działania, których nie można pominąć.
Przede wszystkim taki projekt nie powinien powstawać w ostatniej chwili (a tak najczęściej się dzieje). Powinien być dobrze przemyślany, a to z reguły wymaga czasu (ale jeśli go brak, pomocne jest doświadczenie projektanta).
Pierwszym i najważniejszym etapem projektowania jest koncepcja. Ogólny pomysł na mieszkanie, wynikający z analizy potrzeb, możliwości (w tym finansowych), przyzwyczajeń i stylu życia. Warto rozważyć wszystkie możliwe pomysły, nawet te szalone. Być może coś z nich uda się przenieść do ostatecznego projektu, jeśli nawet nie, pozostanie nam przekonanie, że wykorzystaliśmy wszystkie możliwości i wybraliśmy najlepszą możliwą opcję.
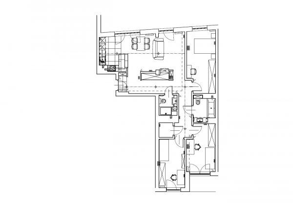
Kolejnym etapem jest stworzenie płaskiego rzutu docelowego mieszkania, na który nanosimy projektowany układ ścian działowych, wrysowujemy meble kuchenne, szafy wnękowe, urządzenia sanitarne, meble ruchome, określamy miejsca zmiany posadzek, sufity powieszone, sprawdzamy odległości, szerokości przejść, zależności między strefami mieszkania o różnych funkcjach. Wygląda to mniej więcej tak:

To jest podstawowy rysunek, do którego odnosimy się w dalszej części prac. Na tym rysunku projektujemy rozmieszczenie oświetlenia w mieszkaniu, analizujemy strefy oświetlenia, ich funkcjonowanie w różnych wariantach i konfiguracjach, rozmieszczenie włączników i gniazdek wtykowych. Możemy zastanowić się jak powiązać oświetlenie z komunikacją, gdzie będziemy włączać oświetlenie idąc do łazienki, a gdzie gasić, wprowadzić włączniki schodowe, na ogół nie występujące w standardzie dewelopera. Meble kuchenne i łazienki powinny być na tyle szczegółowo zaprojektowane, by można było precyzyjnie określić rozmieszczenie podejść instalacyjnych i podłączeń elektrycznych. Jeśli w kuchni ma być wyspa ze zlewozmywakiem, należy uzgodnić możliwość wykonania odpowiedniego podejścia z deweloperem.
Na podstawie tych analiz powstają zwykle trzy rysunki (zazwyczaj w skali 1:50) dla dewelopera. Pierwszy z dokładnie zwymiarowanym rozmieszczeniem ścian działowych i otworów drzwiowych. Drugi z rozmieszczeniem gniazd wtykowych, punktów oświetleniowych i przyporządkowanych im włączników, oraz instalacji niskonapięciowych. Trzeci rysunek to usytuowanie podejść wodno-kanalizacyjnych do przyborów w łazience i kuchni. Możemy też zasugerować zmiany miejsc instalacji grzejników, jeśli kolidować będą z przewidywanym układem mebli (np. przesunięcie grzejnika spod okna w kuchni, jeśli chcemy mieć blat roboczy pod oknem, a w projekcie budowlanym założono inny układ ciągu kuchennego). Wygląda to tak:


Należy przy tym pamiętać, że wszystkie wprowadzane zmiany muszą być zgodne z obowiązującymi przepisami i warunkami technicznymi. Deweloper nie wyrazi zgody na wprowadzenie jakichkolwiek korekt do projektu budowlanego, które będą niezgodne z prawem. Dotyczyć to będzie np. wymaganych przepisami szerokości otworów drzwiowych, stref bezpieczeństwa w łazience etc.
Tagi |